Elden Drive, Atlanta, GA

$750,000

Previous Next

1.00

Acre

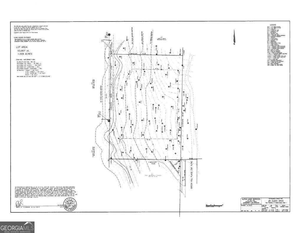
About Elden Drive

Build your custom dream home on this beautiful 1-acre estate lot tucked away on a quiet, no-thru traffic street. Mature trees provide a serene wooded backdrop and natural privacy, creating the perfect setting for your future home. This is your chance to custom build with Palladian Custom Homes. Be sure to explore their latest luxury new construction projects in Country Hills Estates (Belada Blvd) in Sandy Springs, just a short drive from Elden Drive! Located in a prime Sandy Springs location, this property offers unmatched convenience near Chastain Park, top-rated shopping and dining, hospitals, schools, and easy access to interstates 285 & 400. Close to top rated schools and part of the award-winning Riverwood International Charter High School district! Please do not walk the lot without contacting the listing agent first. Builder happy to meet you there.

Features of Elden Drive

MLS® # 10608032
Price $750,000
Bathrooms 0.00
Acres 1.00
Type Land
Sub-Type Residential Lot
Status Active
Basement No

Community Information

Address Elden Drive
Subdivision Sandy Springs
City Atlanta
County Fulton
State GA
Zip Code 30342

Amenities

Utilities Electricity Available, None, Water Available
Is Waterfront No
Waterfront No Dock Or Boathouse
Has Pool No

Interior

Has Basement No
Fireplace No

Exterior

Lot Description Private

School Information

Elementary High Point
Middle Ridgeview
High Riverwood

Additional Information

Days on Market 14
Foreclosure No
Short Sale No
RE / Bank Owned No

Listing Details

OfficeKeller Williams Realty

Listing Map

Request a Showing

Provide a valid email address.
When would you like to view this property?